Ficha
Exclusivo Chalet Independiente en Soto de la Moraleja
Madrid (Soto de la Moraleja ) - REF. 1193

303 m2

5

4

3
alquiler: 5.450 €/mes
Descripción

ALQUILER EXCLUSIVO – CHALET EN EL SOTO DE LA MORALEJA


Ubicación y entorno

Este magnífico chalet se encuentra en una de las calles más exclusivas de El Soto de la Moraleja, una zona reconocida por su comunidad internacional de alto nivel y residencia de numerosos embajadores. La urbanización ofrece parques, amplias zonas verdes y aceras seguras, lo que la convierte en un lugar perfecto para familias. Además, está cerca de La Plaza de La Moraleja, con restaurantes exclusivos de Madrid, ocio premium y supermercados de alta gama.


Distribución y características

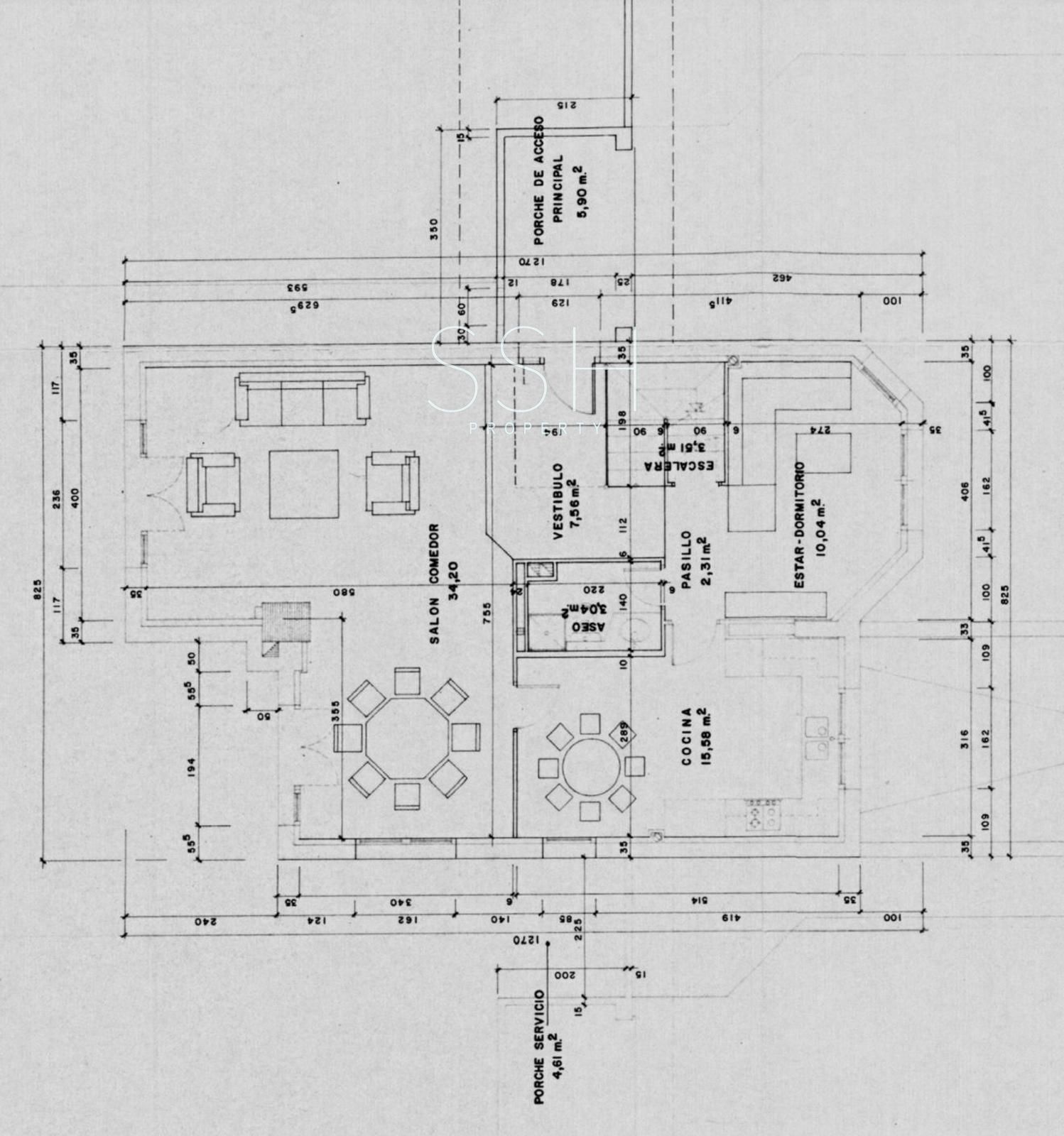
 • Planta principal: porche de entrada, vestíbulo elegante, amplio salón-comedor con salida al jardín, zona de barbacoa y piscina, cocina espaciosa con acceso al jardín; dormitorio/oficina y baño completo con ducha.

 • Planta superior: tres dormitorios, incluido el dormitorio principal en suite con baño reformado, y dos de los dormitorios con preciosas vistas al jardín y piscina; los otros dos dormitorios comparten un segundo baño completo, también reformado.

 • Sótano: quinto dormitorio, baño con ducha, zona de baño, lavandería y mudroom; acceso directo a un gran garaje con puerta automática.


Extras y ventajas

 • Privacidad y seguridad en entorno exclusivo.

 • Ideal para familias por accesos, aceras y zonas verdes.

 • Cercanía a colegios internacionales y nacionales, ocio de lujo y gastronomía premium.

 • Perfecto equilibrio entre tranquilidad, confort y estilo de vida de alto nivel.


Exclusividad

Este chalet se ofrece en exclusiva por SSH Property, garantizando un servicio personalizado y atención premium a los interesados.


Condiciones de alquiler: Disponible a partir de mediados del mes de febrero de 2026; alquiler mensual: 5.450€; servicio de jardinería profesional 160€/ mes, condiciones de contrato a consultar.



EXCLUSIVE RENTAL – LUXURY VILLA IN EL SOTO DE LA MORALEJA


Location and Surroundings

This magnificent villa is located on one of the most exclusive streets in El Soto de La Moraleja, a prestigious area with a high-level international community and residence of numerous ambassadors. The urbanization features parks, extensive green areas, and safe sidewalks, making it perfect for families. It is also close to La Plaza de La Moraleja, with Madrid’s most exclusive restaurants, premium leisure options, and high-end supermarkets.


Layout and Features

 • Main floor: entrance porch, elegant hall, spacious living-dining room with garden, barbecue area, and pool access, large kitchen with garden access; bedroom/office and full bathroom with shower.

 • First floor: three bedrooms, including the master en-suite with renovated bathroom, and two bedrooms with beautiful views of the garden and pool; the other bedroom shares a second fully renovated bathroom.

 • Basement: fifth bedroom, bathroom with shower, bathing area, laundry, and mudroom; direct access to a large garage with automatic door.


Extras and Advantages

 • Privacy and security in an exclusive environment.

 • Ideal for families thanks to green spaces, sidewalks, and safe access.

 • Close to international and national schools, luxury leisure, and fine dining.

 • Perfect balance of tranquility, comfort, and high-end lifestyle.


Exclusivity

This villa is offered exclusively by SSH Property, ensuring personalized service and premium attention for all interested clients.


Rental conditions: Available from mid-February 2026; monthly rent: €5,450; professional gardening service €160/month, contract terms to be discussed.

Características
Precio Alquiler 5.450 €/mes
Año de construcción 1986
Construidos 303 m2
Parcela 409 m2
Dormitorios 5
Baños 4
Cocina Amueblada
Calefacción Calefacción individual
Terraza
Estado Excelente estado
Aire acondicionado
Piscina privada
Garaje
Calificación Energética (E) VER
Rejas en ventanas
Escalas de eficiencia


-
-

Tu agente
Samar Salman (Alquiler)
Contáctanos

Si deseas más información sobre esta propiedad, por favor, rellena el formulario.

 Sí, he leído y/o acepto las Condiciones de uso y la Política de privacidad